WBW Campus Neue Weststadt, Esslingen
Realisierungswettbewerb 2016 – 1. Preis
Bauherr: Land Baden-Württemberg
Standort: Flandernstraße, Esslingen
BGF: 54.000 m²
Pläne/Fotos: BSS Architekten
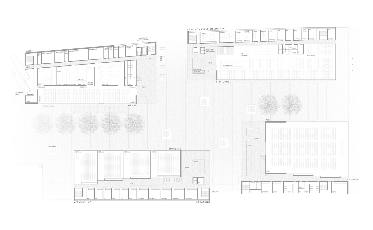
Der Entwurf verteilt das Raumprogramm des ersten Bauabschnitts auf vier Baukörper mit klar zugeordneten Funktionen in deren Mitte sich ein spannungsvoller Innenhof befindet. Der zweite Bauabschnitt schließt den Campus mit zwei weiteren, versetzt angeordneten Baukörpern nach Westen ab. Am Stadtplatz werden zwei Baukörper über einen zweigeschossigen Verbindungsbau im dritten und vierten Obergeschoss zusammengefasst, während die drei unteren Geschosse zurückversetzt sind.
Es entsteht ein großzügiger Zugang zum Hochschulcampus. Der Innenhof verbindet sich mit dem öffentlichen Raum durch weitere Zugänge und Öffnungen. Alle Gebäude sind fünfgeschossig mit einem erhöhten Erdgeschoss, in dem die zentralen Anlaufstellen wie die Bibliothek, die Aula, die Mensa und die großen Hörsäle untergebracht werden. In den oberen Geschossen liegen weitere Seminarräume und Büros. Die Fassade greift die Materialität der Umgebung auf und ist eine Hommage an die die industrielle Historie der Stadt.









