WBW Augustaanlage 65-67, Mannheim
Realisierungswettbewerb 2019 – 1. Preis
Bauherr: ARGON Augusta 65-67 GmbH, Unica Immobilien GmbH
Standort: Augustaanlage, Mannheim
BGF: 25.815 m²
Pläne: BSS Architekten
Visualisierungen: Jonas Bloch
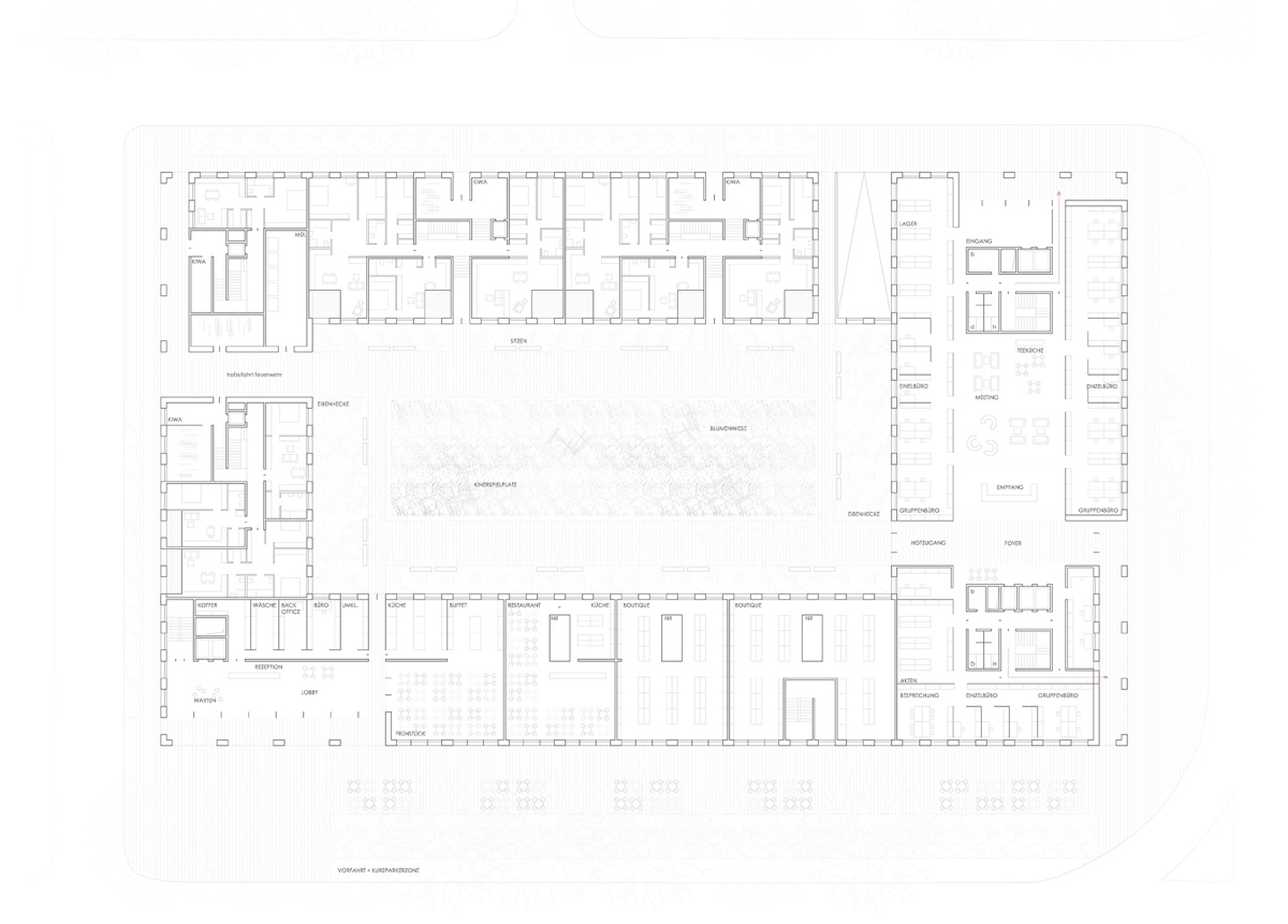
Ausgehend von einer klassischen geschlossenen Blockrandbebauung, wurde ein klares und in seiner Maßstäblichkeit dem Kontext angemessenes städtebauliches Konzept mit einer in ihrer Höhe differenzierten Bebauung erarbeitet. Dabei wurden die Nutzungsbausteine Büro, Hotel und Handel sowie Wohnen entsprechend ihrer jeweiligen Anforderungen angeordnet.
Aus einer durchgehenden Erdgeschossbebauung mit Hofzugängen von der Schleiermacher- und Schubertstraße sowie einer Tiefgaragenzufahrt von der Nietzschestraße entsteht entlang der Augustaanlage ein sechsgeschossiger Hotelbau mit entsprechendem Eingangsbereich. Dies ermöglicht die erwünschte Belebung der Augustaanlage. Die Büronutzung bildet am Stadteingang einen Baukörper aus einem 17-geschossigen gut proportionierten Turm mit integrierten Technikgeschossen sowie einem weiteren fünfgeschossigen Volumen.
Dieser Baukörper wurde als angemessenes und doch eigenständiges Pendant zum Jahn-Gebäude am Stadteingang beurteilt. Abgerundet wird der Block durch Wohnnutzung entlang der Nietzsche- und Schleiermacherstrasse, die in mehreren an die Nachbarschaft angepassten Volumen mit gut organisierten Grundrissen untergebracht wurden.









