WBW Wohnungsbau und KiTa Bayernkaserne WA5, München
Realisierungswettbewerb 2021 – 1. Preis
Bauherr: GWG Städtische Wohnungsgesellschaft München mbH
Standort: Teilbereich WA5, Bayernkaserne, 80939 München
Pläne/Fotos: BSS Architekten
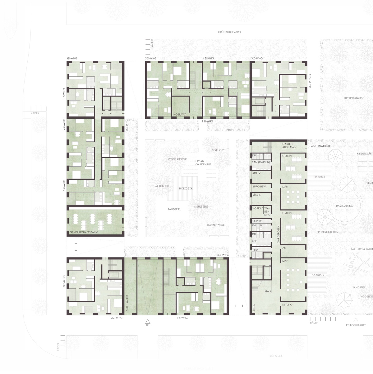
Eine windmühlenartige Anordnung einzelner Baukörper bestimmt den Gesamtblock. Durch diese Anordnung entstehen differenzierte Einzelhäuser, die den Block bilden und zusammenhalten. Diese Überlagerung von Einzelhäusern und Block ist eine Antwort und eine unübliche Ausformulierung eines urbanen Blockes. Mit dieser Auflösung der Gesamtanlage entstehen interessante Entrees, die immer in den Durchgängen liegen und gleichzeitig als Wetterschutz funktionieren. Weiter gibt es durch die windmühlenartige Anordnung klar gegliederte Wohnungstypologien, wie auch im EG die Kita.
Durch die unterschiedlichen Höhenentwicklungen der einzelnen Baukörper werden die Dachflächen sinnvoll erschlossen und bilden so eine fünfte Fassade. Das Erdgeschoss ist ein interessanter Sockel, auf dem die vier Häuser stehen. Er unterstützt damit die Gesamtblockanlage.
Die Gliederung der Fassade der vier Eckhäuser mit horizontaler Ausformulierung und die mittleren Häuser mit sogenannten Lochfassaden bilden eine lebendige Abfolge. Diese horizontalen Bänder werden durch die reliefartige Ausbildung aus Architekturbeton gegliedert und ziehen den Block wieder als Ganzes zusammen.







