WBW Wohnanlage Tassiloweg, Hallbergmoos
Realisierungswettbewerb 2018 – 1. Preis
Bauherr: Gemeinde Hallbergmoos
Standort: Tassiloweg, Hallbergmoos
Zeitraum: 2018
BGF: 5.290 m²
Pläne/Fotos: BSS Architekten
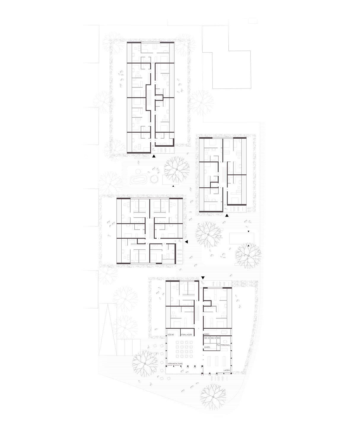
Die pavillonartigen Wohngebäude schaffen durch Versetzung und Überschneidungen auf dem Wettbewerbsareal eine ausgewogene Mischung aus öffentlichen, halböffentlichen und privaten Zonen, was das Gemeinschaftsgefühl der Bewohner stärken soll und ein kommunikatives Miteinander fördert. Erschlossen werden die Wohnquartiere über den östlich gelegenen Nachbarschaftsplatz, welcher als Bindeglied zwischen den Baukörpern und als zentraler Begegnungsort fungiert.
Es wurde großen Wert auf eine effiziente Grundrissanordnung mit kurzen Verkehrswegen gelegt. Dies sorgt für eine komfortable Nutzung der Wohneinheiten und kommt der Wohnqualität zugute. Die fünf verschiedenen Wohnungstypen decken verschiedenste Bedürfnisse ab, weshalb die Wohnhäuser von Einzelpersonen ebenso gut wie von Familien genutzt werden können. Jede Wohnung verfügt über einen privaten Außenraum in Form einer Loggia oder Terrasse. Alle Wohnungen und Ebenen sind barrierefrei erreichbar. Alle Treppen und Aufzüge führen in die unter den Neubauten befindliche Tiefgarage, die neben Wasch- und Technikräumen auch noch Abstellräume für die Bewohner bereitstellt. Es wurde insgesamt 68 Wohneinheiten geplant. Die Gesamtzahl der Wohneinheiten lässt sich bei einer anderen Verteilung der Wohnungsgrößen jedoch noch steigern.






