WBW Hauptpostareal, Nürnberg
Realisierungswettbewerb 2015 – 4. Preis
Bauherr: Projektentwicklung Nürnberg GmbH & Co. KG
Standort: Bahnhofsplatz, 90443 Nürnberg
Pläne/Fotos: BSS Architekten
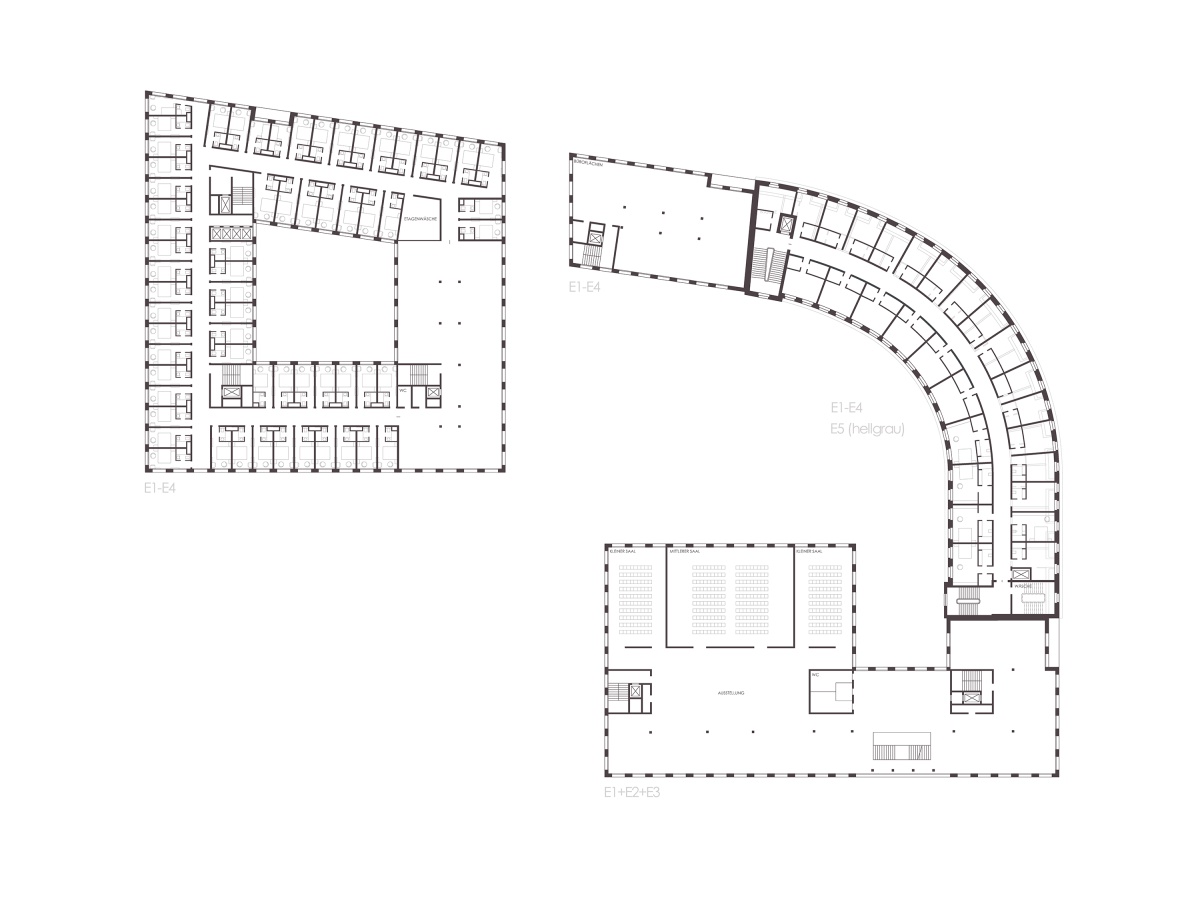
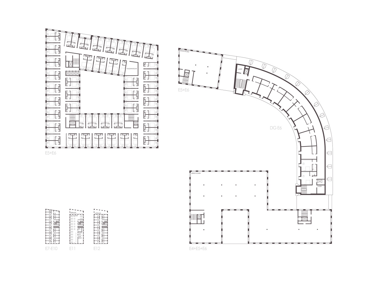
Der Entwurf zeichnet sich durch eine klare städtebauliche Struktur aus, mit einem markanten Baukörper zum Bahnhof hin und einer feinen Gliederung entlang der Bahnhofstraße. Der neu gestaltete Platz bietet großzügigen Raum und schafft Potenzial für eine Vorfahrtslösung. Die Architektur zeigt Respekt vor dem benachbarten Rundbau und der Erhalt der Dachgauben wird positiv bewertet.
Die Fassade setzt einen neuen, innovativen Akzent in der Verwendung von Stein, was auch den Denkmalschutz überzeugt. Der Entwurf zeigt eine klare architektonische Haltung und erfüllt die Anforderungen an ein steinernes Hochhaus. Die Platzierung der Postnutzungen ist sehr gelungen, und die Hotelzimmer sind wirtschaftlich und großzügig geplant. Insgesamt stellt der Entwurf ein anspruchsvolles und lobenswertes architektonisches Statement dar, das sich intensiv mit der Umgebung auseinandersetzt.










