WBW Gutenberg-Museum, Mainz
Realisierungswettbewerb 2022 – Anerkennung
Bauherr: Stadt Mainz
Standort: Liebfrauenplatz 5, 55116 Mainz
Pläne/Fotos: BSS Architekten
Der Entwurf des Neubaus für das Gutenberg-Museum entstand im Dialog zwischen städtebaulichen Rahmenbedingungen, funktionalen Anforderungen und wirtschaftlichen sowie ökologischen Ansprüchen. Er fügt sich als gegliedertes Ensemble aus Bestandsgebäuden und neuem Museumsbau ein. Der Neubau folgt den Fluchten der Seiler-, Mailands- und Rotekopfgasse, wodurch klar definierte Stadträume entstehen, die für Druckladen, historische Werkstatt, Museumscafé und angrenzende Gastronomie genutzt werden können.
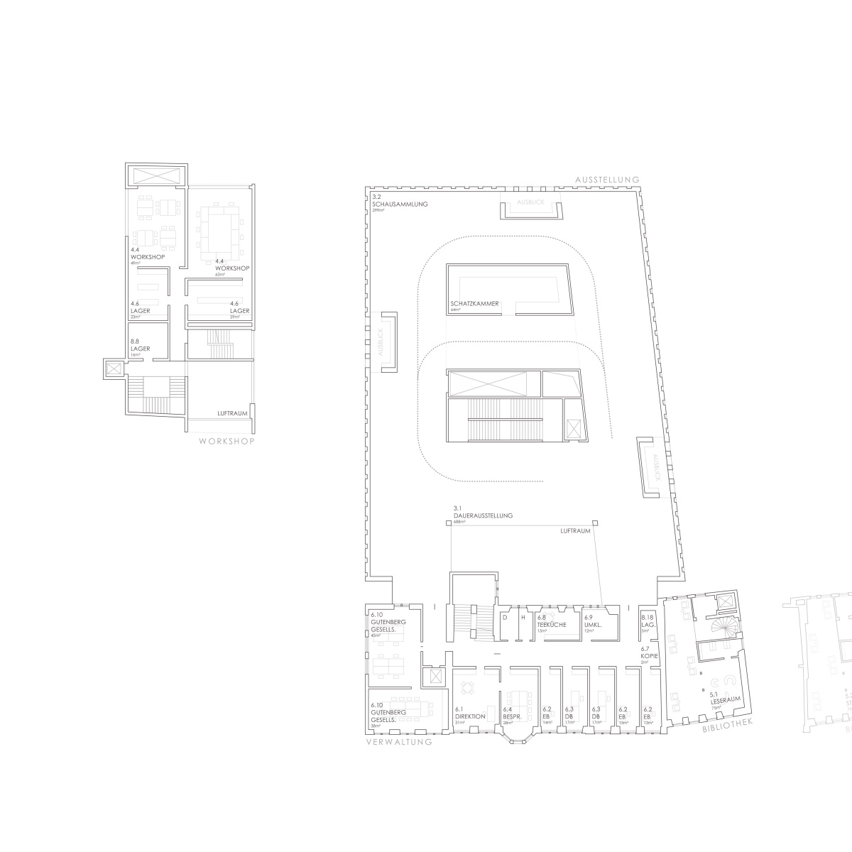
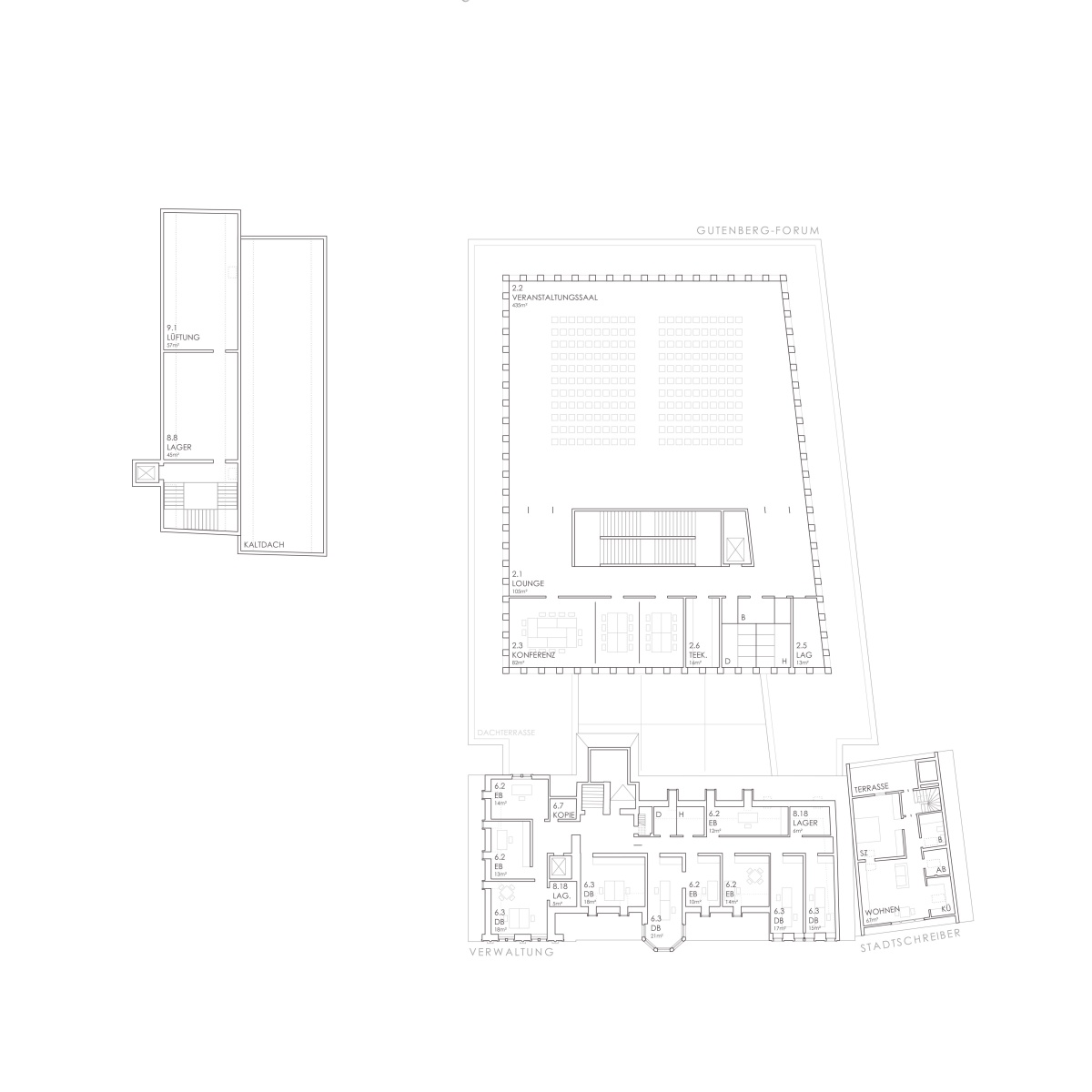
Die funktionalen Zuordnungen der Gebäude entsprechen den verschiedenen Nutzungseinheiten. Der Erweiterungsbau in der Seilergasse beherbergt im Erdgeschoss den Druckladen, darüber Workshopräume und Werkstätten zur Restaurierung. Das Hotel Schwan bleibt äußerlich erhalten und bietet im Inneren Platz für die Bibliothek, die über vier Geschosse reicht. Die Wohnung des Stadtschreibers befindet sich im Dachgeschoss.
Der Römische Kaiser bleibt ein bedeutender Eingang zum Museum. Im westlichen Teil befinden sich der Museumsshop und das Café, beide mit Zugang zum neuen Foyer und unabhängig nutzbar. Die Museumverwaltung ist in den Obergeschossen untergebracht und mit den Ausstellungsflächen verbunden.
Das neue Foyer verbindet Seiler- und Rotekopfgasse und dient als zentrale Eingangshalle mit Informationsbereich und Museumskasse. Es erleichtert die Orientierung und verknüpft die Zeitschichten der Gebäude. Die Erdgeschosszone belebt durch die einsehbare historische Gutenberg-Werkstatt die umliegenden Gassen. Die Sonderausstellung ist ebenfalls im Erdgeschoss untergebracht, unabhängig vom restlichen Ausstellungsbereich. Die Dauerausstellung mit Schatzkammer, Schausammlung und Kindermuseum befindet sich im ersten und zweiten Obergeschoss. Das oberste Geschoss beherbergt das Gutenberg-Forum mit einer umlaufenden Terrasse und großer Verglasung.
Das Untergeschoss verbindet alle Gebäude miteinander und beherbergt dienende Räume wie Depots, Lager, Magazine und Technik.










