WBW Grundschule Spinelli, Mannheim
Planungswettbewerb 2019 – ein 1. Preis
Bauherr: Stadt Mannheim
Standort: Dürkheimer Straße, 68309 Mannheim
Pläne/Fotos: BSS Architekten
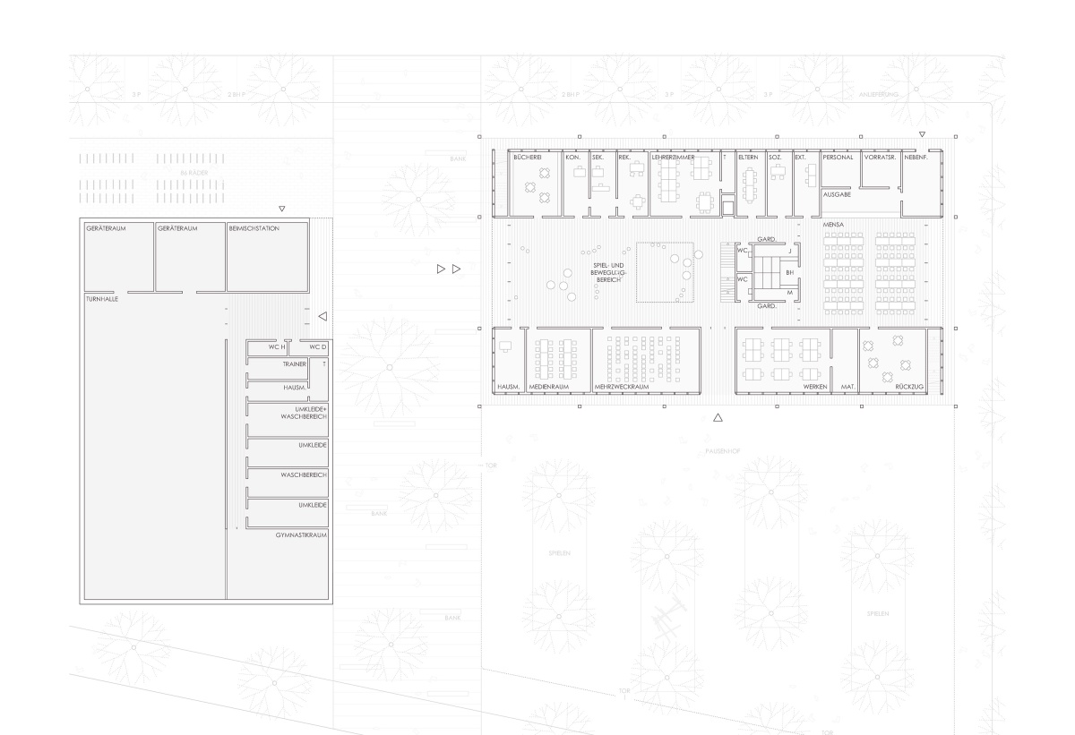
Zwei einfache Setzungen – die Grundschule parallel zur Dürkheimer Straße, senkrecht dazu die Sporthalle von der Straße abgerückt – bilden eine kleine Vorfläche im Norden und einen grünen Schulhof im Süden. Dieser angenehm mit Bäumen strukturierte Raum findet seine Fortsetzung in den angrenzenden Sportbereichen.
Der Übergang von Schulhof zum Grünraum lässt viel Spielraum, lässt aber dennoch eine klare Zonierung zu. Die Merzingerstraße als klimatische Wirkungszone findet sinnfällig eine Fortsetzung in einer Grünachse, an der die Eingänge für Schule und Sporthalle angeordnet sind und die ihr Ende erst an der Sportfläche im Süden findet.






