WBW Feuerwache 1, Nürnberg
Realisierungswettbewerb 2009 – 1. Preis
Bauherr: Stadt Nürnberg, Hochbauamt
Standort: Reutersbrunnenstraße, Nürnberg
Zeitraum: 2012-2021
BGF: 18.997m²
Pläne/Fotos: BSS-Architekten
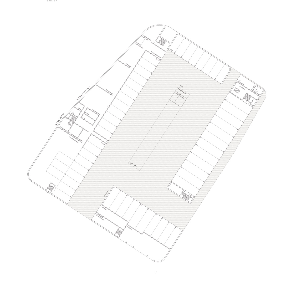
Die Feuerwache 1 befindet sich in verkehrsgünstiger Lage am Nürnberger Westring in unmittelbarer Nachbarschaft zur Pegnitzaue. Das umfangreiche Raumprogramm mit Fahrzeughallen im Erdgeschoss, sowie Aufenthalts-, Schulungs- und Büroräumen im Obergeschoss ist ringförmig organisiert, sodass die maximalen Nutz- und Übungsflächen im gemeinsamen Innenhof für die Feuerwehr zur Verfügung stehen. Klinkerfassaden geben der Einrichtung eine für die Funktion selbstverständliche Materialität und tragen dazu bei, die Feuerwache als wichtigen Baustein und als Merkzeichen im Stadtteil zu verankern.
Im Inneren erzeugen mit Bretterschalung hergestellte Sichtbetonwände ein gleichwohl robustes wie auch lebhaftes Erscheinungsbild. Im Erdgeschoss befinden sich hauptsächlich die Feuerwehrfahrzeuge. Ergänzend dazu werden im westlichen Gebäudekomplex vorwiegend Werkstätten und ein zweigeschossiger Lagerbereich untergebracht. Die Decke über dem Erdgeschoss wird als Flachdecke mit Unterzügen konzipiert. Die Unterzüge spannen quer zum Gebäude und fangen die tragenden Innenachsen des Obergeschosses ab, wodurch auf Stützen im Inneren der Fahrzeughallen und Schreinerei verzichtet werden kann.









